1
006190
https://pratiche.comune.voltaggio.al.it/GisMasterWebS/SP/IsAut.ashx
https://pratiche.comune.voltaggio.al.it/GisMasterWebS/SP/LogoutSAML.ashx
https://comune.voltaggio.al.it
it

Cascina/Casa indipendente Barchetta in vendita

Dettagli della notizia

Vendita cascina/casa indipendente con ampio terreno

Data:

20 Maggio 2025

Tempo di lettura:

Descrizione

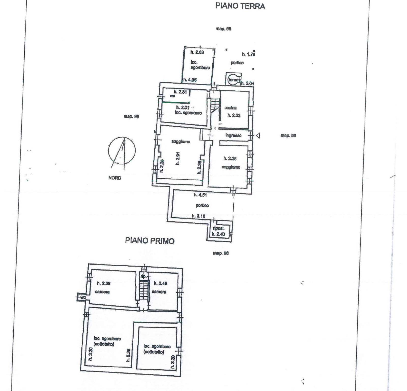
Ubicata sull'appennino ligure/piemontese, a 40 km da Genova e raggiungibile da strada carrabile asfaltata, proponiamo in vendita affascinante cascina in pietra di mq 230 diposta su due livelli oltre a sottotetto. L'edificio isolato, ma facilmente raggiungibile dal paese, è circondato da un ampio terreno pianeggiante di proprietà coltivabile di mq. 24.000 circa. Acqua Sorgiva (sorgente di proprietà) e fiume confinante. L'immobile si presta a svariate attività agricole/turistiche e necessita di completa ristrutturazione con possibilità di ampliamento. I terreni prativi e seminativi/pascoli, sono tutti facilmente accessibili con mezzi agricoli. Completano la proprietà una cantina, un porticato con forno a legna e una legnaia/deposito attrezzi.
Per ulteriori informazioni e appuntamenti: IMMOBILI & GESTIONI Srl - Telefono 010.56.48.06 - www.immobiliegestioni.it

Ultimo aggiornamento: 20/05/2025, 17:07

Quanto sono chiare le informazioni su questa pagina?

Grazie, il tuo parere ci aiuterà a migliorare il servizio!

Quali sono stati gli aspetti che hai preferito? 1/2

Dove hai incontrato le maggiori difficoltà?1/2

Vuoi aggiungere altri dettagli? 2/2

Inserire massimo 200 caratteri